更新時間2026年02月11日#FUK2080B
住宅公寓
放售
【福岡超熱門,大濠公園吉屋】 福岡大濠公園,單邊、兩面採光,靚間隔浴室、廁所有窗,總價港幣$50萬
大廈步行6分鐘到「大濠公園」站,空港線2站到「天神」
| 地區 | 福岡 中央區 |
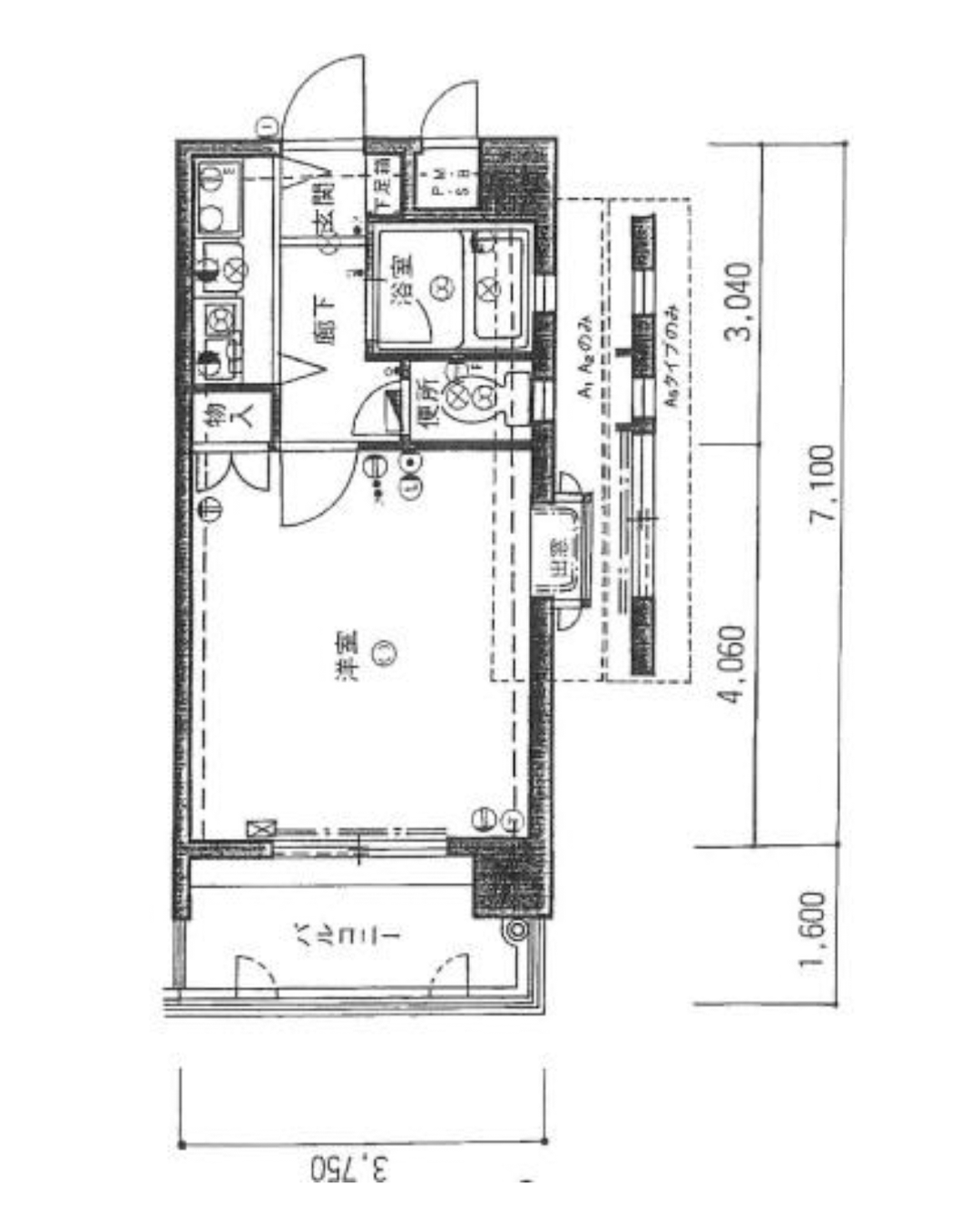
| 面積 | (室內) 286.53平方呎+ (露台) 59.41平方呎 |
| 落成年份 | 1991年 |
| 交通 | 徒步6分鐘 到 大濠公園站 |
| 樓層 | 總共15層,位於4樓 |
| 總價 (包括開支) | 970.00萬円 (約港幣50.00萬) |
| 售價 | 890.00萬円 (約港幣46.00萬) |
| 現況 | 空室 |
全部客戶真實評價
地區介紹
【大濠公園】介紹:
憑著良好及舒適的環境,它已連續數年列入福岡最想居住的生活城市前叁名,出租率極好
距離天神最大商圈僅2站4分鐘,是深受當地人們喜愛的大濠公園地區
福岡賞櫻必去大濠公園,春天可賞櫻、夏天看煙火大會、秋天賞楓、冬天有燈飾造景,是個一年四季都很美的自然景觀公園;
推薦理由
【推薦理由】
- 大廈步行4分鐘是福岡縣內唯一入選「日本櫻花百選」的賞櫻聖地「西公園」;
- 大廈步行4分鐘內有24小時超市/便利店/藥妝,生活極方便,出租率極高;
- 大廈步行6分鐘到「大濠公園」站,空港線2站到「天神」,4站到「博多」,6站到「機場」;
- 高層單邊吉屋,總價只係$50萬港幣做大濠公園業主;
大廈周邊資訊:
總價格(包括樓價、稅金及傭金) : 約970萬日元起 (約港幣50萬元)
大廈周邊資訊
—步行1分鐘到達 Family Mart便利店
—步行4分鐘到達 西公園
—步行4分鐘到達 MaxValu 24小時超市
—步行4分鐘到達 新生堂藥妝店
—步行6分鐘到達 「大濠公園」地鐵站
大廈位置


